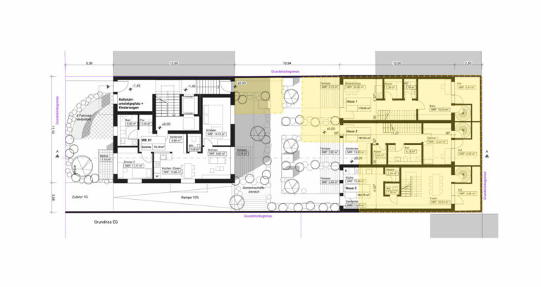
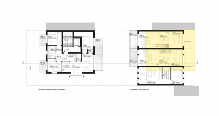
Auf einem Grundstück in der Schillerstraße soll die nicht ortstypische Bebauung – ein zweigeschossiger Bau im hinteren Teil des Grundstückes – abgerissen werden. Stattdessen wird die Brandwand des Nachbargrundstücks um ein Vorderhaus als Doppelhaushälfte ergänzt. Dieses soll sich mit seinen Balkonen, dem Mansarddach und den Gauben in das Straßenbild einfügen. Mit barrierefreien Geschosswohnungen mit 3 bis 4 Zimmern wird das Vorderhaus geplant.
Das Hinterhaus wird als Stadthaus konzipiert. Drei Mehrgeschossige Einfamilienhäuser haben einen direkten Zugang zum Hof. Der Charme der drei Stadthäuser liegt in den große Balkonen, einer Dachterrasse, Emporen und individuellen Wohnungsgrundrissen. In Fassadenstudien werden die unterschiedlichen Möglichkeiten der Stadthäuserfassaden untersucht.
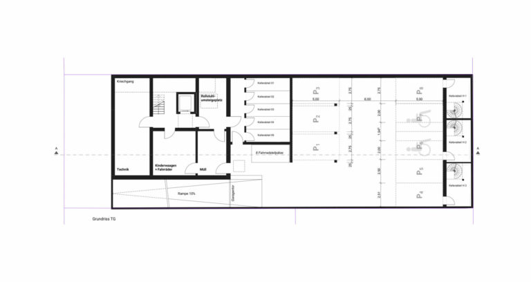
Die beiden Häuser stehen auf einer gemeinsamen Tiefgarage und Kellerräumen. Durch die Anhebung des Erdgeschosses entsteht eine Vorzone vor dem Gebäude und die Erdgeschosswohnung entzieht sich dem Straßenraum. Der Hof wird in private Gärten und einem Gemeinschaftsbereich gegliedert. Dieser Garten dient als Mittelpunkt des neuen Gebäudes. Der Bauherr ist eine Baugemeinschaft.