Machbarkeitsstudie Aufstockung C7, Mannheim

Im Jahr 2017 wurde unser Projekt C7 in Mannheim fertiggestellt. Im Frühsommer diesen Jahres wurden wir von einem der Bewohner angefragt, ob eine Aufstockung auf dem vorhandenen Flachdach möglich ist. Wie kommt es, dass nach nicht einmal 4 Jahren die Bewohner Ihre Wohnung als unzureichend empfinden und mehr Platz benötigen?
Die Antwort ist ganz einfach: Home-Office hat in vielen Deutschen Haushalten den Flächenbedarf innerhalb der eigenen Wohnung deutlich vergrößert. Wir verbringen viel mehr Zeit in unseren eigenen vier Wänden als jemals zuvor und der “Schreibtisch in der Ecke”, der bisher nur für die Steuererklärung oder dergleichen ausreichen musste, ist nun unser treuer Begleiter. Daher auch die Anfrage, ob durch eine Aufstockung Wohnraum geschaffen werden kann, der in den letzten 1 1/2 Jahren sehnlichst gewünscht wurde.
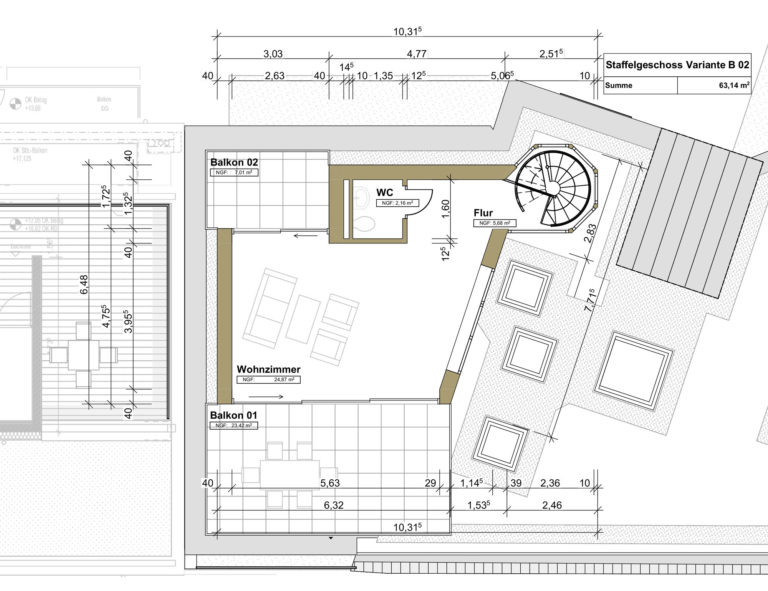
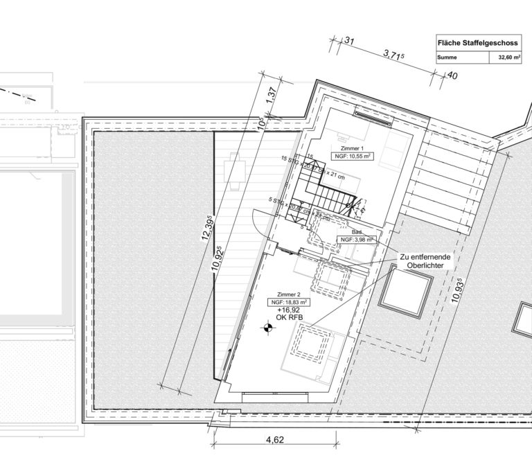
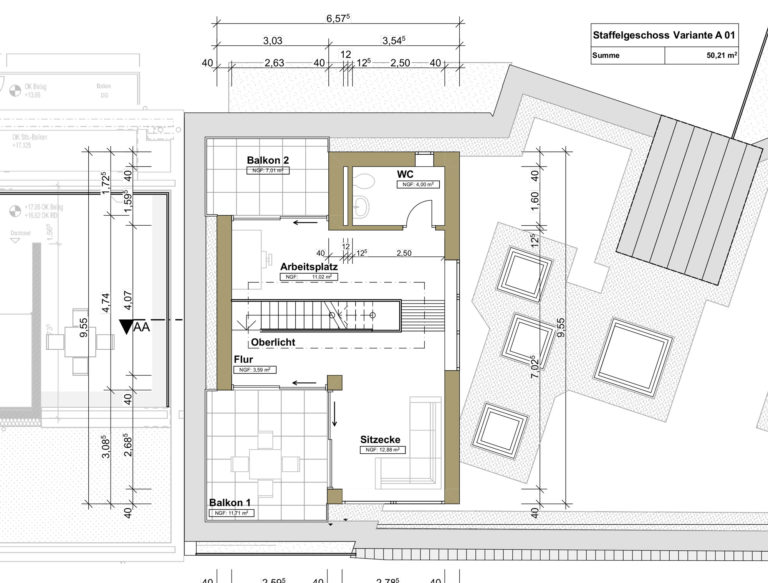
Sehr gerne haben wir uns im Büro an eine Art Machbarkeitsstudie gesetzt und verschiedene Varianten verglichen. Aus der bestehenden Geschosswohnung soll eine Maisonette-Wohnung entstehen, sodass ein Büro, ein zusätzliches Jugendzimmer und ein Bad im obersten Geschoss ergänzt wird.
Dabei muss abgewogen werden: Größe, Ausnutzung, Verschattung, Sinnhaftigkeit, Abstandsflächen, Statik

Standort C7, Mannheim
Bauherr privat
Bauweise Holzbau
Sonstiges Jahr der Machbarkeitsstudie 2021
DE