Klimagerechtes Bürogebäude im TPK, Karlsruhe

Im Technologiepark Karlsruhe soll in einer Baulücke ein siebengeschossiger Neubau für mietbare Bürofläche entstehen.
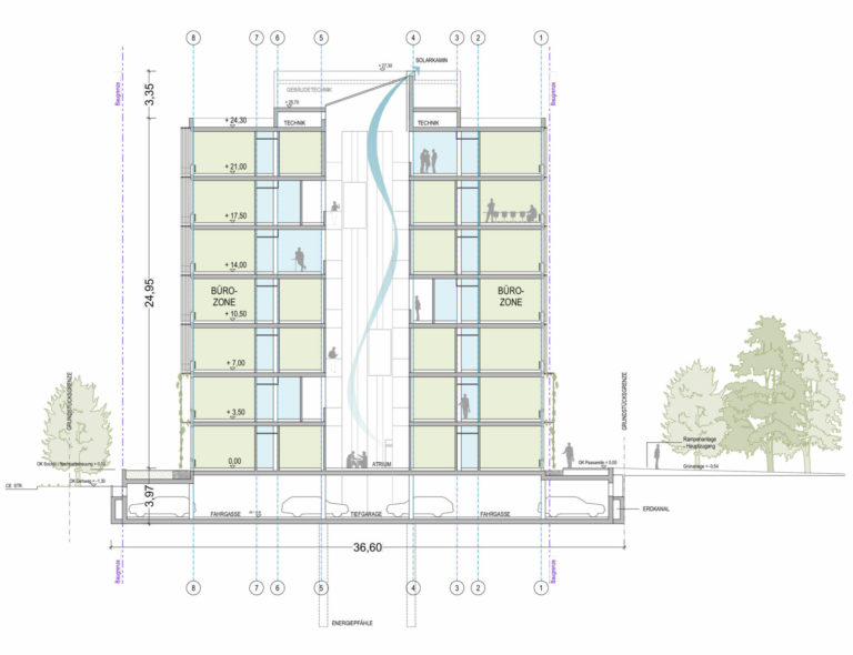
Der Entwurf sieht im Zentrum des Gebäudes ein Atrium vor, das als Herzstück des Entwurfes gesehen wird und eine angenehme Arbeitsatmosphäre schafft. Im Atrium befindet sich die primäre Erschließung aller Geschosse. Es verbindet die einzelnen Parzellen, auch über die Geschosse hinweg, über Sichtbeziehungen miteinander. Zudem werden die innenliegenden Büros auf diese Weise mit Tageslicht und Luft versorgt. Kleine Balkone als Austritte schaffen differenzierte Raumangebote. Auch energetisch weist das Atrium einen Mehrwert auf, weil es als Solarkamin genutzt wird.

Die nachströmende Luft wird über einen Erdkanal in das Atrium geführt. Dies ist ein wirkungsvoller Beitrag zum thermischen Komfort und der Energieeffizienz.
Durchbindende Flure erschließen längs zum Atrium die zweispännig angeordneten Bürozonen und enden an den Stirnseiten an begrünten Loggien, an die auch die Fluchttreppen angebunden sind. Durch die Ausbildung des Tragwerks als Skelettbau, ist die Einteilung der einzelnen Büros variabel und unabhängig von den anderen Geschossen. Dies ermöglicht eine Raumaufteilung, die an den Bedarf angepasst werden kann und sieht Belegungswechsel vor. Überdies leistet die Gliederung der Grundrisse eine Vielzahl an möglichen Trennungen für einzelne Mietparteien innerhalb eines Geschosses. Ein Geschoss kann in bis zu vier Parzellen eingeteilt werden.

Die Bepflanzung der Fassade bricht das Raster der seitlichen Fassaden und markiert die vertikale Erschließung. Die Begrünung lässt in den Wintermonaten die tiefstehende Sonne weit in das Gebäude hineinscheinen, im Sommer ist sie ein wirkungsvoller Sonnenschutz.
Die Fassade (innen wie außen) ist modular aufgebaut. Die Vorfertigung und Elementierung einzelner Bauteile ermöglicht eine Reduzierung der Bauzeit und Senkung des Fehlerpotentials auf der Baustelle. Die bauliche Verschattung über Lamellen, je nach Besonnung unterschiedlich ausgeführt, verleiht dem Gebäude einen leichten transluzenten Charakter und ist Ausdruck eines Paradigmenwechsels in der Architektur.

Standort Karlsruhe, Emmy-Noether-Straße 13
Bauherr EWG Eigentums-Wohnbau-GmbH & C0. KG
Fertigstellung in Planung
Bauweise Skelettbau
DE