Evangelische-Freikirchliche Gemeinde (Baptisten), Heidelberg

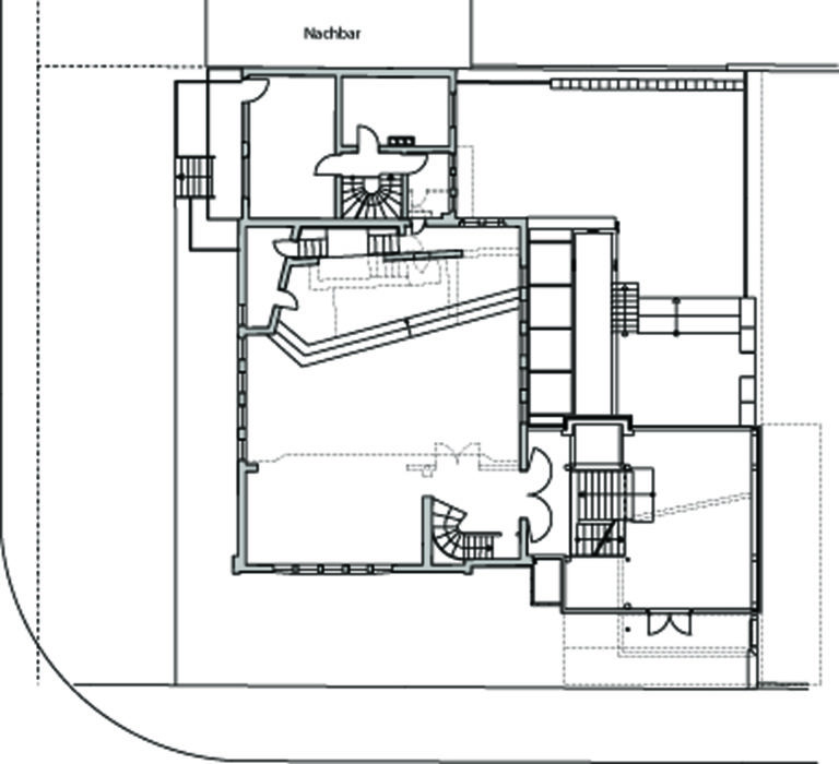
Anlass zum Umbau und zur Erweiterung des Gemeindehauses war die Baufälligkeit der bestehenden Eingangstreppe in den Gottesdienstraum, das Fehlen eines Foyers und die mangelhafte Verbindung zu den unteren Versammlungs-, Gruppen- und Sanitärräumen. Es sollte ein Eingangsbau geschaffen werden, der für die verschiedenen Aufgaben wie Büchertisch, Sonntagscafé, Kommunikation etc. Platz bietet und der die unteren Räumlichkeiten besser integriert. Dem introvertierten, bestehenden Gebäude aus den 1960er-Jahren mit seiner expressionistisch wirkenden Giebelspitze wurde nun ein klarer Kubus nebenan gestellt, der Transparenz und Offenheit ausstrahlt. Es entstand ein Ensemble aus Alt und Neu, aus der Architektur zur Zeit der Anfänge der Gemeinde und der jetzigen Architektur als Spiegelbild des gegenwärtigen Gemeindelebens.

Standort Heidelberg
Bauherr Evangelische-Freikirchliche Gemeinde Heidelberg (Baptisten)
Fertigstellung 2002
Bauweise Massivbau
Sonstiges Erweiterung des Bestandsgebäudes
DE