Doppelhaushälfte, Stuttgart

Im Randbereich von Stuttgart steht das Bestandsobjekt als Doppelhaus. Eine Hälfte wurde bereits renoviert und hat zum Süden hin eine Erweiterung erhalten. Die andere Hälfte ist nun an der Reihe, sich neu zu definieren. Bedauerlicherweise ist die vorhandene Struktur und die Bausubstanz aus dem Jahr 1936 nicht erhaltenswert und lässt keine Möglichkeit zu, die Anforderungen und Wünsche des Bauherrn durch einen Umbau umzusetzen. Der Keller weist zudem Feuchtigkeit auf.
Ein Komplettabriss ist unausweichlich, nur so kann ein modernes, energieeffizientes Gebäude erstellt werden, welches den Geist der Zeit und den Bedürfnissen des Bauherrn gerecht wird.
Das neue Objekt soll nicht nur auf die Ansprüche des Bauherrn sondern auch auf seine Umgebung angemessen reagieren. Es soll eine Putzfassade ausgeführt und die Dachform samt Neigung übernommen werden. Dazu werden die Fluchten der anderen Gebäude aus der Umgebung aufgegriffen, sodass sich der neue Baukörper gut in die Umgebung einfügt.
Das Grundstück wird vom Norden erschlossen und hat eine Nord-Süd-Orientierung, die gemeinsame Wand befindet sich im Osten. Nach Süden des Grundstückes erstreckt sich ein wunderschöner Garten, an dem sich die Räume des Neubaus orientieren und sich öffnen, wodurch die Verbindung von innen nach außen gestärkt wird.
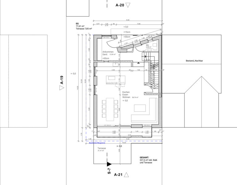
Auch in den Innenräumen wird der Entwurf durch die Gegensätze von Sichtverbindungen und Geschlossenheit geformt. Das zweigeschossige Gebäude plus Dachgeschoss ist klar gegliedert in öffentliche, halb-öffentliche und private Bereiche. Eine klassische Aufteilung der Nutzungen „unten Wohnen oben Schlafen“ bildet die Grundlage der Grundrissgestaltung. Die „Gesellschaftsräume“ wie Kochen, Essen und Wohnen befinden sich im Erdgeschoss, die Schlafräume liegen im 1.Obergeschoss und unter dem Dach findet sich ein privates Studio.

Standort Stuttgart
Bauherr Privat
Fertigstellung in Planung
Bauweise Massivbau,Poroton
Energiestandard KfW 55EE
Sonstiges Sole-Wasser-Wärmepumpe + PV-Anlage mit Speicher
DE