Últimas noticias

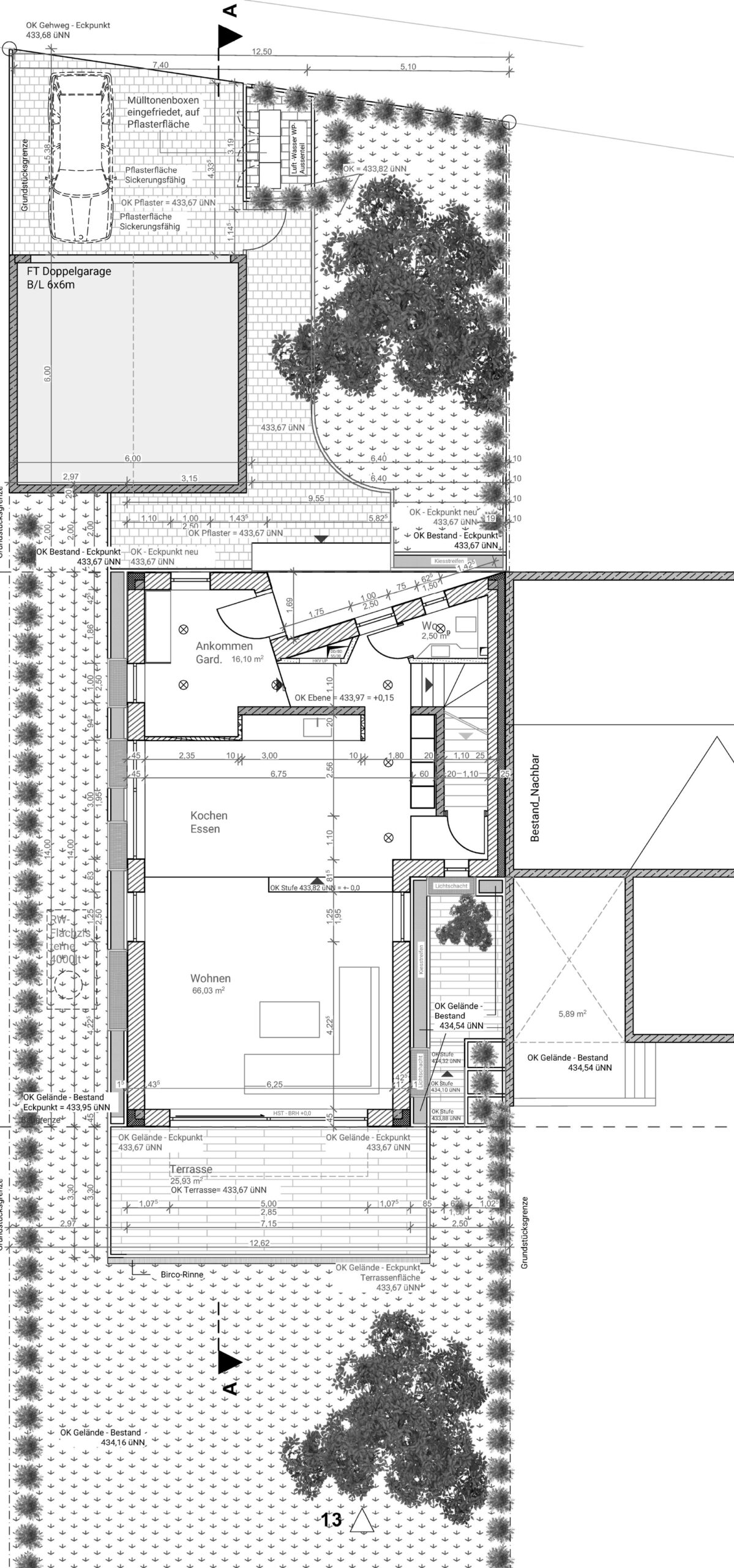
Casa adosada Stuttgart - licencia de obras obtenida.

Nuestro proyecto de casa adosada en la zona de Stuttgart ha sido aprobado. Esta semana hemos recibido la licencia de obras. Estamos muy contentos de poder empezar y de que las excavadoras puedan empezar a trabajar.

Más información sobre el proyecto aquí.

ES